HISTORIA
Es el proyecto de rehabilitación de nuestra casa en el que mi mujer y yo hemos aportado todo nuestro conocimiento e ilusión.
En el año 2003 nos embarcamos en este proyecto. Por aquel entonces teníamos la ilusión suficiente como para adentrarnos en un proyecto, que a pesar de todos los inconvenientes, no nos amedrantamos y tiramos para adelante. Las familias y amigos nos decían que estábamos locos. Pues la verdad que un poco sí pero lo conseguimos, bastante más tarde de lo que imaginábamos, porque la vida cambia y hay que adaptarse. Finalmente lo terminamos en marzo del 2019 con la fachada.
Hasta dar con esta vivienda hubo un cribado importante de otras muchas ya que ninguna cumplía los requisitos que nos permitiera reflejar todas las ideas que teníamos en mente. Sí, había muchas que daban agonía como esta, pero que la única posibilidad por su estado de conservación y distribución del espacio era dejar el solar limpio y empezar de cero. Otras eran demasiado estrechas, o no tenían los metros cuadrados suficientes, o la orientación no era la correcta, o no había posibilidad de vado.
Ha supuesto un gran reto, ya que estábamos condicionados de antemano y no sabes exactamente que te encontrarás hasta que no destripas todo su contenido. Debido a ello, la fase de análisis in-situ, junto a la experiéncia, te puede dar una idea del punto de partida antes de formalizar la compra. En nuestro caso, partimos de una idea inicial de diseño basándonos en principios de sostenibilidad, funcionalidad, necesidades y presupuesto. En función a esto, procedimos al desescombro, a partir del cual pudimos terminar de definir el diseño. En esta etapa pudimos valorar los elementos a reutilizar, rehabilitar o restaurar. El proyecto estuvo vivo en todo su desarrollo e íbamos aportando idea principalmente a nivel acabados y estética, ya que la parte estructural estaba definida desde el principio. Diseñamos y fabricamos mobiliario a medida e iluminación.
Nuestra idea inicial para la rehabilitación era que a través de certificaciones parciales de obra. Conforme íbamos avanzando las obras, el banco nos facilitase un dinero acordado. De tal manera, que pudiéramos entrar a vivir con lo básico: estructura, instalaciones, aislamientos, lucidas, rejuntados, alicatados, carpintería metálica, un baño acabado y cocina. Pero todo no es tan sencillo, en estos casos los albañiles normalmente trabajan por horas, ya que salen muchos problemas y no se quieren pillar los dedos. Debido a esto, nuestro presupuesto se fué en las partidas de: estructura (sin el taller), solera, tratamientos, instalaciones, aislamientos, carpintería metálica, alicatado de comedor-cocina. Teniendo en cuenta además que el banco tardaba tiempo en pagar el importe de las partidas ejecutadas en modo de certificaciones parciales, hacía que tuviéramos un nivel de estrés considerable. Todo acabó bien con los técnicos pero tuvieron que irse sin llegar a finalizar todas las partidas del proyecto aunque sí las importantes. Hicieron buen trabajo. Me costó que vinieran porque es una empresa que se dedica a rehabilitaciones integrales de casas antiguas de piedra en pueblos del interior de Castellón y faena no les falta. Durante los meses que estuvieron los albañiles yo les ayudaba como peón e iba aprendiendo el oficio. Nos trasladamos a vivir a la casa y durante un año el suelo de las habitaciones era el hormigón de la solera pero no nos preocupaba en exceso, todo llegaría.
Taller improvisado habitación calle

Faltan muchas cosas por hacer

Colocaremos el friso del techo cuando se pueda, no es urgente
Poco a poco, durante los primeros años de manera constante y los últimos principalmente los veranos, con lo que ahorrábamos y con nuestras ganas lo sacamos adelante. Es incalculable el tiempo dedicado. Lo dividíamos en proyectos pequeños de temáticas muy diferentes, que la mayoría no habíamos realizado anteriormente. Teníamos claro las prioridades y la jerarquía a seguir. Nos lanzábamos a ello y muchas cosas no salían a la primera pero con práctica, autocrítica y con ganas de hacer bien las cosas fuimos motivándonos y avanzando. También, algunos proyectos puntuales los contratamos a profesionales que hemos ido conociendo durante todos estos años. En nuestro taller se pueden encontrar todo tipo de herramientas, materiales y además nosotros hemos adquirido competencias para el manejo de las mismas (albañilería, carpintería, metalistería, electricidad, fontanería, pintura, jardinería).
Me vienen a la mente todo tipo de anécdotas. Una de las que más nos marcó fué cuando estábamos rejuntando la pared medianera en la zona de la terraza y Elena se sintió mareada. Nos comunicaron que estaba embarazada de nuestra primera hija. A partir de entonces, bajamos el ritmo y nos lo tomamos de otra manera.
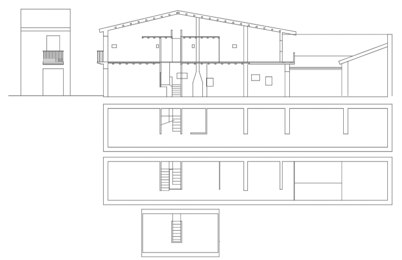
Emplazamiento y orientación viviendaSituada en zona céntrica de Castellón ciudad, en calle semipeatonal con orientación Sur-Oeste. Comparte medianeras con una vivienda de misma altura y un solar. La propiedad mide 4m de ancho (3.55m interior) por 28m de largo, de los cuales, 18m pertenecían a vivienda, 6m a patio y 4m a la palliza.
